khartseva
Стиль, Качество, Изобретательность
Bu
khartseva
Ценности:
Расширять границы представлений и возможностей
Вдохновляться,
но не заимствовать
Создавать архитектуру
на века
Ценить природность,
культуру и традиции
Buro

Проекты

Новости
бюро, создающее
Архитектурное
нетривиальные
архитектуре
от сложности задачи
независимо
в
и
проектные решения
дизайне

Buro

Bu
Кто мы:
молодая, амбициозная
Bukhartseva Buro –
и изобретательная команда архитекторов, создающая нетривиальные решения в своих проектах независимо от исходных данных,
за счет приверженности стилю, а не моде,
а также авторскому подходу в создании архитектурной идеи.
СПЕЦИАЛИЗАЦИЯ
Разработка концепций и комплексное проектирование жилых и общественных зданий
01
Благоустройство и ландшафтная архитектура
02
Дизайн жилых и общественных интерьеров
03
Проектирование фасадов
04
Разработка АГР, АГО (Альбом архитектурно-градостроительных решений)
05
Проектирование МАФ
(Малых архитектурных форм)
08
Проектирование коттеджных поселков
06
Создание проектов по реконструкции и ремонту
07
(01)
(03)
(02)
(04)
(08)
Полное ведение проекта
от концепции до реализации
Наглядность проектов -
3D-визуализация, аксонометрия, схемы и все необходимые
чертежи
Даже из простого сделаем красивое и функциональное
Используем современные технологии и решения
Оперативно реагируем
на запросы в процессе работы
(07)
Выраженный стиль для любых объектов
(06)
BIM-проектирование - автоматизация проектирования и ускорение работы
(05)
Повышаем окупаемость ваших инвестиций за счет авторской архитектуры
Наш
стиль
работы
Портфолио
2020
2021
2022
2023
Москва, 2021
Интерьеры мест общего пользования (МОП) многоэтажного многоквартирного дома с подземной автостоянкой в Новой Москве
VAT
VAT
Москва, 2022
KRJ
Проект оформления входных групп офисного здания в центре Москвы
KRJ
Москва, 2020
Дизайн интерьера квартиры, расположенной в ЖК Береговой
ber
ber
Волгоград, 2023
Эскизный проект благоустройства дворового пространства, площадью 0,07 га в Городищенском районе, г. Волгограда
ULK
ULK
Ростовская область, 2021
Проект благоустройства двора реабилитационного приюта для лиц, попавших в сложную жизненную ситуацию
RSTV
RSTV
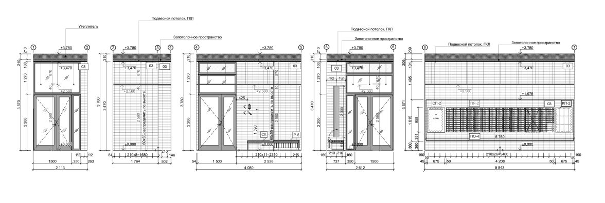
Дизайн-проект интерьера офисного здания.
москва, 2024
kti
kti
Эскизный проект благоустройства Сквера памяти погибших 26 сентября 2022 г. в школе № 88 г. Ижевска
ИЖЕВСК, 2023
izhs
izhs
2024
2025
Московская область, 2021
Проект частного дома, расположенного в Раменском районе, Московской области
RYAZ
RYAZ
Москва, 2023
Проект реконструкции фасадов здания в центре Москвы
Kot
Kot
Звенигород, 2014
zven
Конкурс на концепцию застройки территории площадью 227 гектаров для жемчужины Подмосковья — Звенигорода.
zven
Дизайн интерьера квартиры, расположенной на Новом Арбате
Москва, 2020
ARB
ARB
Москва, 2024
Концепция развития территории
производственного здания
в Можайском районе г. Москвы
prm
prm
МИАСС, 2024
Концепция системы общественных пространств
АО "Автомобильный завод "УРАЛ"
в г. Миассе Челябинской области.
mias
mias
АСТРАХАНЬ, 2024
Всероссийский конкурс на разработку
архитектурно-градостроительной концепции формирования туристско-рекреационного
кластера "Астраханский"
на острове "Пролетарский в г. Астрахани
ASTR
ASTR
Открытый конкурс на лучший дизайн-проект Мест Общего Пользования (МОП) для жилого комплекса М_5
Красногорск, 2023
M5
M5
О нас
основатель и главный
Бухарцева Эвелина —
и
количеством
архитектор
сложных
интересных
в нашей команде.
Начала свою карьеру
архитектором в 2014 и успела поработать над большим
объектов
Мы — молодая архитектурная компания, основанная в 2020 году, в которой работает от 3-х до 8-ми человек
Не только проконсультируем по нашим услугам, но и поможем выбрать оптимальное решение для реализации вашего проекта:
Отзывы
Консультация по услугам бюро
Новости